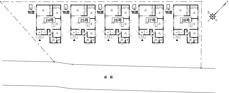
名 称 旭町貸家typeⅡ
住 所 新ひだか町静内旭町1丁目21番地24~28号
家 賃 70,000円
権利金 70,000円
敷 金 70,000円
清掃代 45,000円(敷金充当)
間取り 3LDK(82.5㎡、25坪)
部屋数 5戸
構 造 木造
築年数 平成18年11月
駐車場 あり(2台)
設 備 FF石油ストーブ、ガス給湯器(プロパンガス)、下足入
    洗面化粧台、収納カウンター、物置
※ペットがいる場合別途70,000円