名 称 ハイツ古川Ⅶ
住 所 新ひだか町静内御幸町4丁目5番13号
家 賃 65,000円
権利金 65,000円
清掃代 38,000円(前払い)
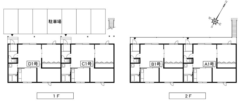
間取り 2LDK(71.28㎡、21.6坪)
部屋数 4戸
構 造 木造
築年数 平成17年5月
駐車場 あり(1台)
設 備 FF石油ストーブ、ガス給湯器(プロパンガス)、下足入
    洗面化粧台、収納付カウンター
※ペットがいる場合別途65,000円