名 称 ハイツ古川Ⅵ
住 所 新ひだか町静内青柳町1丁目2番11号
家 賃 48,000円
権利金 48,000円
清掃代 30,000円(前払い)
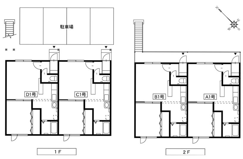
間取り 1LDK(41.31㎡、12.5坪)
部屋数 4戸
構 造 木造
築年数 平成15年5月
駐車場 あり(1台)
設 備 FF石油ストーブ、ガス給湯器(プロパンガス)、下足入
    洗面化粧台、収納付カウンター
※ペットがいる場合別途48,000円