名 称 ハイツ古川Ⅴ
住 所 新ひだか町静内古川町1丁目3番33号
家 賃 46,000円
権利金 46,000円
清掃代 30,000円(前払い)
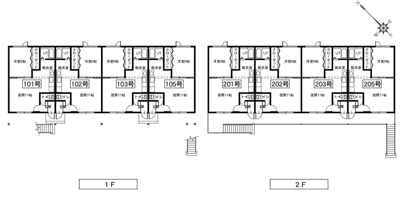
間取り 1LDK(39.6㎡、12坪)
部屋数 8戸
構 造 木造
築年数 平成14年5月
駐車場 あり(1台)
設 備 FF石油ストーブ、ガス給湯器(プロパンガス)、下足入
    洗面化粧台、折り畳み式カウンター
※ペットがいる場合別途46,000円