名 称 ハイツ古川28
住 所 新ひだか町静内御幸町4丁目2番7号
家 賃 50,000円
権利金 50,000円
清掃代 30,000円(前払い)
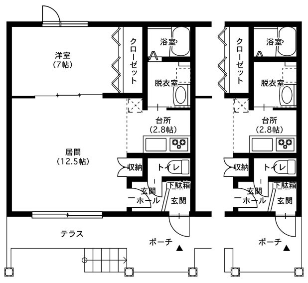
間取り 1LDK(49.68㎡、15.05坪)
部屋数 10戸
構 造 木造
築年数 平成22年4月
駐車場 あり(3台)
設 備 FF石油ストーブ、ガス給湯器(プロパンガス)、下足入
    洗面化粧台、カウンター
※ペットがいる場合別途50,000円